Denver Single Stair Challenge

Denver Single Stair Challenge

Description

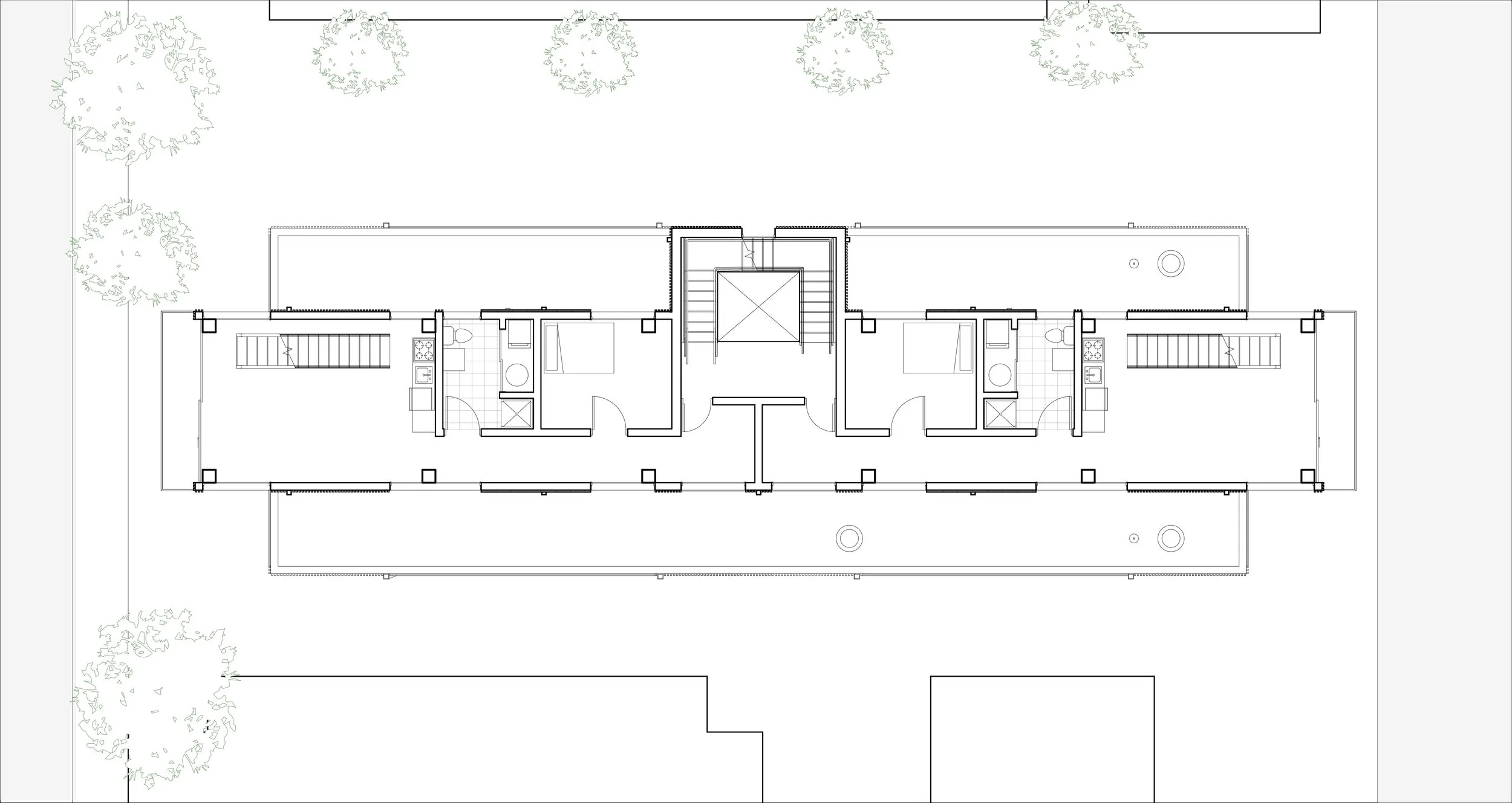
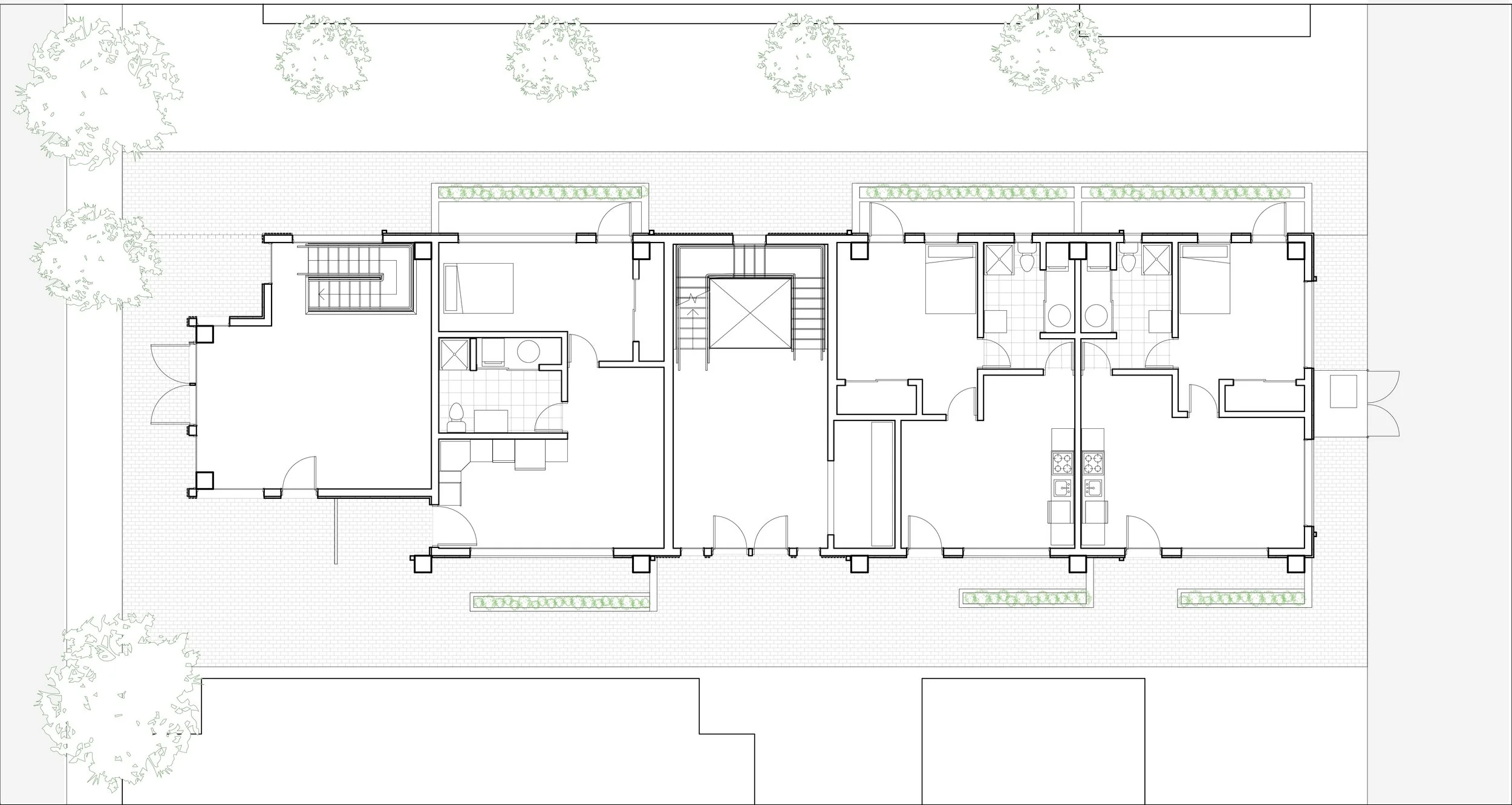
For this project, my partner and I were tasked with redeveloping a vacant lot in Denver’s Capitol Hill neighborhood for the Denver Single-Stair Housing Challenge, the 18th competition in Buildner’s Affordable Housing Challenge series and in partnership with SAR+ Architects, which explores “the Point Access Block housing typology, where a single staircase serves all units, creating compact, efficient, and sustainable residential design.” From this premise, and by following the clear competition guidelines, we created a project that maximized density and livability by leveraging building code technicalities and strategies for sustainability, contextual integration, and shared spaces—ultimately producing a single-stair building with spacious floor plans and a wide mix of typologies and uses.

The mass timber building features a range of unit types that cater to both young professionals and families, including lofted units that allow for more space under a code technicality. We also implemented a myriad of sustainability methods, such as rainwater capturing, solar panel louvers that also reduce solar heat gain, and cross ventilation for reduced HVAC dependency. Furthermore, food for the residents and the local community is produced on the green roof and sold in the commercial space located on the ground floor of the project. Overall, our project reckons with outdated regulations that have fueled the housing crisis by limiting flexibility and affordability in urban housing design and showcases how this can begin to change.

Next
Next

Mediateka on Wesoła